8FD / 8FG
1.0-3.5T
內燃式堆高機,新8系列(8FD/G 1.0-3.5)擁有可靠的引擎、動力豐沛、持久耐力及低耗油量,支援所有工況作業,並降低營運成本。
技術
Technology
承襲豐田一貫的高品質引擎強韌、可靠、環保
新8系列(8FG/D 1.0-3.5)擁有可靠的引擎、動力豐沛、持久耐力及低耗油量,支援所有工況作業,並降低營運成本。
低油耗、低廢氣排放、低噪音設計、低震動設計
低油耗、低廢氣排放
4Y引擎電子控制系統降低油耗、一氧化碳等有害廢氣產生。
低噪音、低震動設計
使用吸音材質,大幅降低噪音及震動。
特別針對護頂架、桅桿和儀表板進行調整設計,使前方和上方視野更加遼闊。
絕佳的操作視野
特別針對護頂架、桅桿和儀表板進行調整設計,使前方和上方視野更加遼闊。
以實務操作觀點來設計,貨叉前端視野清晰可見,車身周圍能見度高,安全、提高精準操作性。
安全操作人性設計
以實務操作觀點來設計,貨叉前端視野清晰可見,車身周圍能見度高,安全、提高精準操作性。
以人為本設計的操控性全油壓動力轉向系統設計,直徑300mm小尺寸方向盤,人性化設計、靈敏度高、操作力輕,幫助駕駛人員在長時間作業下的疲勞度;轉向機構接點少,故障率低、保養容易、維護費低。
以人為本設計的操控性
全油壓動力轉向系統設計,直徑300mm小尺寸方向盤,人性化設計、靈敏度高、操作力輕,幫助駕駛人員在長時間作業下的疲勞度;轉向機構接點少,故障率低、保養容易、維護費低。
輔助手把提供駕駛人員倒車行駛使用,可搭配手把上的喇叭按鈕,提升其駕駛安全性。
輔助手把及駕駛座椅舒適性
輔助手把提供駕駛人員倒車行駛使用,可搭配手把上的喇叭按鈕,提升其駕駛安全性。
駕駛可在固定角度內調整座椅,寬敞的地板空間增加操作舒適性及上下車便利性;便捷的駐足式手煞車設計。
寬敞地板空間 駐足式手煞車設計
駕駛可在固定角度內調整座椅,寬敞的地板空間增加操作舒適性及上下車便利性;便捷的駐足式手煞車設計。
釋放手煞車時,需同時操作按鈕及駐足式手煞車,即可輕鬆解除煞車,多重安全保障設計,防止煞車意外鬆開。
安全又簡易操作手煞車
釋放手煞車時,需同時操作按鈕及駐足式手煞車,即可輕鬆解除煞車,多重安全保障設計,防止煞車意外鬆開。
安全輔助設備
Safety
TOYOTA原創的安全科技,提升您的工作效能,一脈傳承豐田的創新安全配備
主動式穩定系統(SAS)及駕駛離席警示系統(OPS), 令新8系列(8FG/D 1.0-3.5)即使在高頻度工作節奏下也能發揮高穩定性及高安全性。
SAS & OPS,TOYOTA原創的安全科技,提升您的工作效能
※後輪固鎖穩定裝置
當轉彎離心力過大時,固鎖缸作動鎖住後軸,減少轉彎時車輛傾斜,維持車輛穩定性。
※桅桿傾斜控制
依桅桿舉升高度及載物重量,自動控制桅桿前傾角度、後傾速度,防止載物掉落等事故發生。
SAS & OPS
駕駛離席警示系統OPS
(Operator Presence Sensing)
利用操作座椅內的感知開關偵測駕駛是否坐在正確位置,若駕駛未坐在正確操作位置時,電腦將切斷行駛動力(手排車除外)和貨物裝卸操作,以避免危險)。
OPS控制器可控制,裝卸OPS、行駛OPS、座位開關
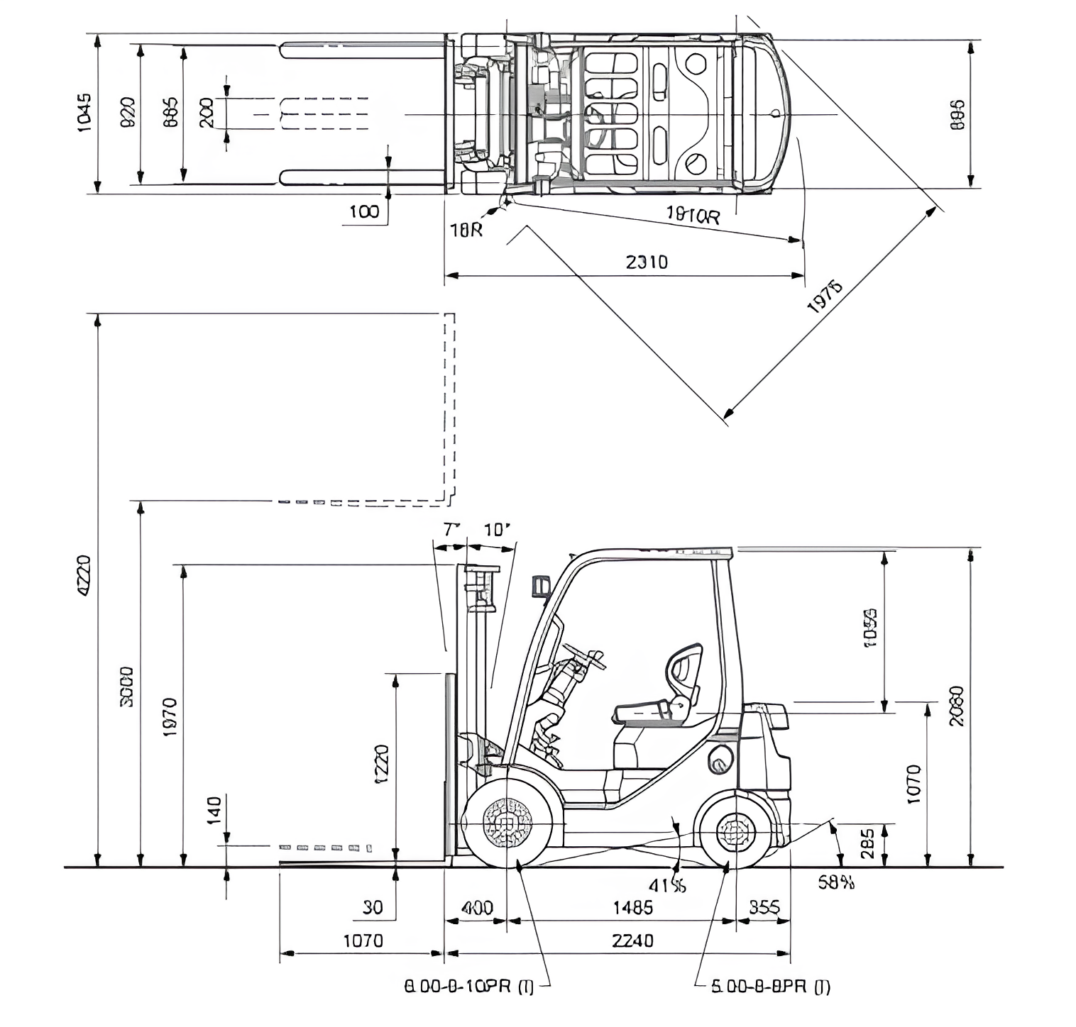
規格圖
規格表
Detail
引擎規格表